The Bucket
Welcome to The Bucket!
The purpose of this page is to toss in resources i come across in the day to day. a collection of textures i find out walking or while researching, links to businesses that provide valuable services, templates of spreadsheets and drafting's of commonly built units.
Services
Here is a list of helpful links to businesses that provide services I commonly use.
Metal working
metal laser cutting
metal supplier in Salem Oregon
minimum order for delivery is $200, that is about 6 sticks of 1x1 steel tube.
metal bending in Portland Area
Lumber
52nd hardware and lumber
Drafting
https://university.vectorworks.net/
Vectorworks University is a great place to get started or refresh your knowledge of the program. 1-5 minute video lessons make it easily digestible.
3D Printing
maker world has a more diverse user base then its rival Thingiverse.
great to start with easily printable files
CNC Cutting
https://carbide3d.com/carbidecreate/
for your quick and dirty G-Code needs. you do need to pay for the pro version to use a G-code but its the cheapest ive found.
seemingly the industry standard for CNC files. tons of resources for learning, practice files and templates to use, fairly in depth design software for cutting 2D & 3D with your CNC.
CNC shop for outsourcing cuts.
Maslow CNC is a DIY automated router built by a community of cheap and crafty engineers now selling a kit for you to assemble with a gravity wall. This is what I started with at Broadwayrose.
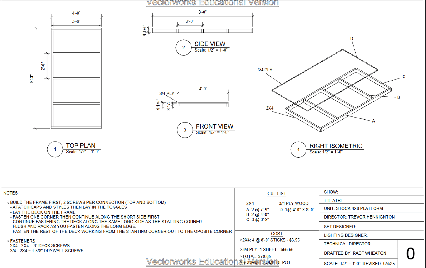
Templates








Textures






Cool Shit










The Arrival of our CNC Machine!
CAMaster Stinger 3 ATC with a 4x8 bed and a Vacuum table.

Get in Touch
See somethin you like? ask me about it!
Contact
951-229-3952
Raefwheaton63@gmail.com
Raef@broadwayrose.org
Broadway Rose Technical Director